Lo studio di Progettazione si occupa della ideazione e della realizzazione di progetti ex novo relativi ad immobili privati e pubblici, appartamenti, ville e alla ristrutturazione di palazzi in centro storico.
Di seguito alcuni dei lavori seguiti con passione dallo studio di architettura ed
ingegneria Ing. Arch. Patrizio Zerbinati.
  • 01 Attico a Pontecorvo a Padova

    Palazzo storico nel centro di Padova e costituito da due occhi di portico, è stato completamente ristrutturato dall' Ing. Arch. Patrizio Zerbinati, accoglie all'ultimo piano l’abitazione privata dello stesso progettista  e rappresenta la sintesi delle conoscenze e della volontà progettuale dell’autore vincolata dalle esigenze del sito ma liberamente espresse nella totalità dei dettagli, nell’accurato studio degli spazi e nella ricerca emozionale della luce.

    La scala di accesso si articola su tre piani interni ed è prosecuzione di quella comune all’intero palazzo. La sua progettazione ha considerato sia la fruizione che avviene all’interno sia la caratterizzazione che traspare sulle parti comuni. Si persegue l’idea di un unicum che non si stacca dall’edificio ma ne è apice e conclusione.

    La luce è elemento architettonico chiarificatore e ordinatore degli spazi, accompagna, guida e collega i vari ambienti. Li evidenzia mediante i colori dell’iride di formelle in vetro o attraverso i chiaroscuro delle geometriche strutture delle porte.

  • 02 Casa di villeggiatura a Teolo (PD)

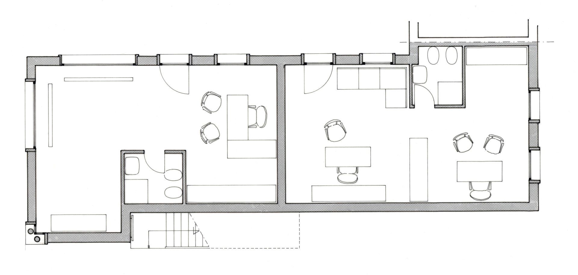
    Edificio incassato nella splendida cornice dei Colli Euganei. Tra gli elementi caratterizzanti quest’opera, è di notevole interesse la facciata principale, completamente vetrata, sulla quale si innestano serramenti che dialogano con la struttura in ferro a vista. La luce viene fatta penetrare all’interno dell’edificio attraverso la facciata principale prospiciente sud, mentre le pareti dei due lati est ed ovest, realizzate in trachite, sono tagliate orizzontalmente da una finestra a nastro che sembra far galleggiare la copertura. La casa, al suo interno, si articola su tre livelli: piano interrato, piano terra e piano soppalco, collegati da una scala a chiocciola.

    Al piano interrato, dotato di un accesso indipendente, si trova la taverna con una zona cottura e un bagno. Attraverso la scala a chiocciola si sale al piano terra, dove si trova il corpo centrale destinato ai servizi, dal quale si imposta poi il soppalco, e la zona pranzo. Quest’ultima ha la possibilità di prolungarsi verso l’esterno grazie alla completa apertura della parete vetrata.Sempre al piano terra, nelle due fasce laterali, sono ricavati due spazi dedicati ad angolo cottura e ad una camera da letto a scomparsa.

    Salendo la scala a chiocciola, si è accompagnati da una parete curva che scherma, a livello del soppalco, la zona notte da un piccolo salotto.

  • 03 Complesso residenziale e commerciale a Limena (PD)

    Il complesso edilizio residenziale e commerciale di Limena è costituito da 20 alloggi e un portico al piano terra su cui affacciano le unità commerciali. Il lotto era originariamente composto dai capannoni abbandonati di un ex negozio di mobili di falegnameria. Il piano di recupero prevedeva quindi di accorpare le varie volumetrie e realizzare un unico compatto e ordinato intervento edilizio. La presenza di ville venete sul front principale ha contribuito a delineare le caratteristiche principali del fabbricato: l’utilizzo della pietra sul basamento, il portico esterno (la parte pubblica), la corte interna (la parte privata). L’area dedicata alle residenze è imperniata su un asse che virtualmente collega le ville venete all’argine, attraverso un percorso diretto che taglia in pianta l’interno complesso. Il fabbricato gode di affacci continui sulla corte interna per catturare più luce possibile, mentre la facciata esterna principale che segue l’andamento dell’asse stradale presenta un prospetto compatto, materico e chiuso.

  • 04 Complesso residenziale a Reschigliano (PD)

    Il complesso residenziale fortemente voluto da una cooperativa sociale fa parte di un più vasto organismo edilizio di Edilizia Economica Popolare. L’edificio è costituito da due volumi rettangolari imperniati sul vano scala, un cilindro che funge da cerniera all’intero meccanismo consentendo di traslare gli assi delle residenze e di rispettare l’andamento degli assi stradali. Il trattamento cromatico e di finitura delle pareti verticali evidenzia questa chiara struttura e lo stacco tra i servizi e le residenze. Il cornicione dell’edificio è articolato con una volumetria curva ed imponente poiché aggettante ma la soluzione progettuale e la scelta stilistica di forare la massa materica del calcestruzzo permettendo di scorgere il cielo lo ha reso leggero e caratterizzante.

  • 05 Complesso residenziale e commerciale in Via Busonera ad Abano Terme (PD)

    Questo progetto nasce dalla volontà della committenza di realizzare un edificio di riferimento nel centro di Abano terme, in una zona di estremo interesse turistico, notevole vivacità commerciale ma con un comparto edilizio non accattivante e non inclusivo degli ospiti termali. Il prospetto che affaccia sulla passeggiata pedonale, segue l’andamento della via, ed emerge dalla cortina degli edifici limitrofi per gli elementi dichiaratamente moderni e l’accuratezza delle scelte stilistiche. Il prezioso rivestimento in marmo rosa, gli angoli del fabbricato “svuotati”, il cornicione che galleggia sopra una fila di finestre a nastro, l’arco ribassato sopra le vetrate dei negozi, sono tutti elementi che alleggeriscono l’edificio e lo differenziano dalla classica soluzione edilizia anni 70. Interessante e strutturato lo studio dell’ingresso con il serramento in legno e vetro che “sostiene” il vano scala. Ricco di dettagli, questo edificio si connota al suo interno dalla corte coperta da travi a ginocchio che dinamizzano lo spazio aperto e creano la proporzionalità necessaria alla percezione umana.

  • 06 Attico in via Roma a Padova

    Nata da una complessa e più ampia ristrutturazione di un intero palazzo in centro a Padova ad opera dello studio di progettazione dell' Ing. Arch. Patrizio Zerbinati, questo attico si articola su più livelli sfruttando doppie altezze ed affacci per dinamizzare uno spazio che accentra l’attenzione su un’iconica parete in marmo rosa dalle potenti venature. La regolarità della pianta rettangolare viene sfruttata per sviluppare asimmetrie disassando i volumi che si succedono a filtro tra le zone ad uso comune e le zone private. I servizi, nella zona centrale priva di finestrature, sono enfatizzati da preziose pareti colorate di grassello di calce che riflette e amplifica la luce. La cucina mostra il soffitto in travi di legno originarie recuperate in fase di ristrutturazione e dichiara attraverso formelle in vetro cemento la presenza di ulteriori spazi su piani sfalsati, tipici della tradizione del raumplan.

  • 07 Recupero Borgo Rurale di fine 700 a Padova

    Il “Fornasotto” è un antico borgo del 700 nato intorno ad una fornace, e diventato successivamente il centro delle lavandaie che si spostavano agevolmente tra i lavaggi nell’Isonzo e le stenditure nel Fornasotto. Il recupero dell’intero borgo, sotto l’attenta supervisione della Soprintendenza di Venezia, è stato un fedele lavoro che ha riportato alla luce tutta la storia di questo piccolo “villaggio”, ricreando un nuovo centro edilizio residenziale. Le abitazioni sono immerse nel verde sia privato che pubblico ma la scelta progettuale è stata quella di non realizzare barriere o recinzioni all’interno di questo residence.

  • 08 Negozio via Cernaia a Padova

    Il fabbricato esistente è stato mantenuto e sviluppato per trasformarlo in un edificio a destinazione puramente commerciale. I 4 negozi vengono distribuiti sui due livelli e serviti da una scala esterna. Quello che colpisce di questo progetto è sicuramente la facciata che si presenta sul fronte stradale. La localizzazione dell’intervento era di estremo impatto poiché sorge su una importante confluenza di traffico, a ridosso di una rotonda stradale costantemente invasa da veicoli. Il fabbricato doveva quindi lasciare un segno e farsi ricordare. La scelta fu quindi di realizzare una grossa vetrata libera perfettamente tonda, un segno riconoscibile e facilmente ricordabile. Delle vetrate a nastro coronano la facciata e vengono sovrastate dal cornicione e sa un classico tetto in coppi. 

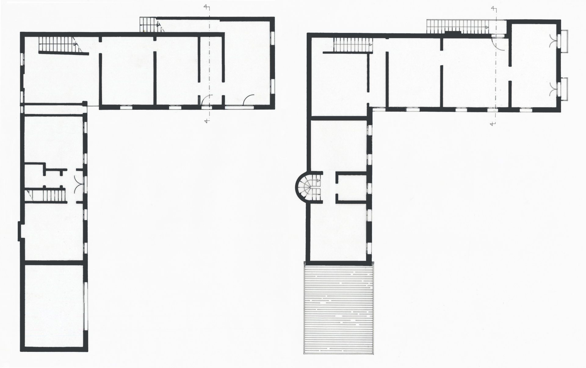
  • 09 Polo Universitario Casa Grimani al Portello (PD)

    Il progetto di restauro di Casa Grimani è stato commissionato all’Ing. Arch. Patrizio Zerbinati da una società danese che ricercava un sito di rappresentanza per i propri uffici. Durante il rilievo e la pulizia del fabbricato abbandonato emersero i punti di forza del progetto: le grandi arcate ottocentesche, i solai in legno del primo piano, la splendida e complessa copertura in legno e tavelle. Nel pieno rispetto dell’analisi filologica del fabbricato si decise di intervenire con il risanamento dell’esistente, la demolizione delle tramezzature interne che impedivano di poter godere appieno delle notevoli luci dei solai lignei ed il consolidamento delle travi principali. Per un ottimale utilizzo dell’intero edificio si è spostato il vano scala e si sono inseriti dei nuovi servizi igienici. Interessante soluzione per catturare la luce e permettere di godere degli spazi seppure necessariamente frammentati, è stata quella di realizzare la parte superiore delle tramezzature interne in vetro fino al soffitto. L’abbondanza di luce che penetra nell’edificio dalle numerose aperture e che concorre a suggestivi chiaroscuri, suggerì un’articolazione molto libera delle piante e l’impiego di finiture diverse allo scopo di moltiplicare gli effetti suggestivi (mattone, intonaco, grassello di calce, ferro legno, vetro).

    L’insieme di tali scelte ha consentito il recupero di un bene storico che ancora oggi testimonia gli importanti valori e contenuti della civiltà veneta anche nel campo dell’edilizia. Acquistato successivamente dall’Università di Padova, è stato adibito a segreteria della stessa senza alcuna variante significativa.

  • 10 Casa in via Ceoldo a Padova

    Il progetto di riammodernamento di questo appartamento nasceva dal desiderio del cliente di recuperare a nuovo utilizzo il caminetto di casa. Da questo incipit e dal continuo scambio e confronto con la committenza è scaturito un progetto che ha rinnovato arredi e distribuzione dell’intera zona giorno. Riportato a nuovo vigore il caminetto con uno stile moderno e accattivante, si è rivoluzionata la zona giorno attorno al ritrovato focolare domestico. Gli arredi, studiati ad hoc sulle richieste del cliente, la nuova libreria in vetro e cavi d’acciaio fino alla disposizione dei quadri, sono gli aspetti che hanno reso personale e con-vissuto questo prezioso progetto.

  • 11 Unità residenziali in via De Visiani a Padova

    Il lotto su cui insiste questo intervento edilizio ha una conformazione triangolare stretta e lunga su cui insisteva un unico fabbricato a ridosso delle abitazioni confinanti. Il progetto ha mantenuto la volumetria esistente e la distribuzione interna tramite il recupero del vano scala esistente.

    Il Cliente necessitava la presenza di ampie zone comuni (identificate nella cucina e nel soggiorno) e di zone private autonome costituite da camere da letto e bagno privato, per poter ospitare una piccola comunità che operava nel padovano ma proveniente da fuori provincia. Volumetria aggiuntiva è stata realizzata sopra i garage esterni, con una struttura superiore che necessitava di leggerezza e velocità nell’esecuzione per venire incontro alle esigenze della committenza. Tale volume costituiva una sorta di dependance collegata alle abitazioni principali tramite le terrazze ma dotata di una scala autonoma che ne accentuava lo stacco dal fabbricato esistente. La scelta del colore della finitura esterna (pigmentazioni diverse in base ai volumi) ha sancito una sorta di cronologia dell’edificato, denunciando come il nucleo originale si sia sviluppato moltiplicandosi e dando vita all’attuale fabbricato.

  • 12 Occhio di Portico per n. 4 unità residenziali in Via Savonarola a Padova

    Via Savonarola è una via storica e caratteristica del centro di Padova. Oggetto di questa ristrutturazione è stato l’interno palazzo, con la realizzazione di nuove unità abitative di pregio al suo interno. L’affaccio dell’ingresso al palazzo direttamente su questo occhio di portico ha spinto la progettazione a porre estrema attenzione al suo studio e realizzazione. Con un richiamo volutamente siziano del primo gradino della scala trattato con un marmo rosa di colore diverso dei successivi gradini (marmo bianco) e che impreziosisce a gradoni anche parte della parete, il vano dell’ingresso dialoga tra materiali preziosi e lavorati (come il grassello di calce) e materici (legno rovere e marmo), tra linee squadrate e linee curve che ingentiliscono ed agevolano il passaggio.

    Il cancello di ingresso è in ferro micaceo e abbinato alla porta in vetro consente che la luce possa entrare e riflettersi piacevolmente sulle superfici lucide di pareti e pavimento.

  • 13 Progetto Nuova Biblioteca di Ponte San Nicolò (PD)

    Il progetto di questa Biblioteca raccoglie l’idea ambiziosa di un Comune e del suo sindaco di creare un nuovo polo di aggregazione, innovativo e moderno a ridosso del Municipio ed in sostituzione di una vetusta biblioteca di difficile accesso e fruibilità. La necessità della Committenza era quella di collegare la nuova struttura idealmente e fisicamente all’esistente sede del Comune, per identificare un polo multifunzionale tra biblioteca, sala convegni e municipio. Il lotto prescelto godeva di un parcheggio esistente collegato da una pensilina alla nuova biblioteca. Il percorso esterno entrava direttamente all’interno della nuova struttura attraverso delle grandi vetrate a doppia altezza. Le funzioni ben divise tra amministrazione e sale adulti al piano superiore, mentre al piano terra venivano identificate sale studio per i più giovani e la ludoteca per i più piccoli. La nuova biblioteca doveva rappresentare un abbraccio all’intera comunità, in grado di accogliere le diverse esigenze e le diverse mobilità e capacità, con un’attenzione alle diversità. 

  • 14 Ristrutturazione scuola materna in Via D'Acquapendente Padova

    La parrocchia della Madonna Pellegrina è la committente di questo lavoro di ristrutturazione. L’esigenza di nuovi spazi studiati per accogliere le nuove attività dell’asilo ha reso necessario una riqualificazione degli ambienti interni e un loro ampliamento. Contestualmente si è reso necessario un nuovo ragionamento sulla fruizione della struttura attraverso una nuova rampa che rendesse l’asilo agibile anche in presenza di ridotte capacità motorie e la richiesta di una zona riparata ove potessero raccogliersi bimbi e genitori in attesa dell’apertura quotidiana. La nuova pensilina si inserisce quindi come un elemento dichiaratamente esterno e staccato dal corpo esistente, una sorta di gioco colorato estremamente moderno ed innovativo grazie anche ai vivaci vetri dipinti e alle travi e tiranti in ferro, che riprendono la verticalità dei rivestimenti in mattone della facciata.

  • 15 Unità abitativa a Roè Volciano (BS)

    Il progetto di questa abitazione, che affaccia sul lago di Garda, prende origine dall’osservazione dei luoghi e dall’orografia del territorio. Una delle caratteristiche peculiari della zona è la presenza di “limonaie” che affacciano sul lago. La proposta di distribuire i volumi di questa abitazione imperniati su un asse dichiarato, materico ed evocativo, in pietra locale ha superato le ritrosie dell’Ente Parco entro cui si colloca l’intervento.

    Digradando con terrazzamenti verso l’affaccio sul lago, l’interno si sviluppa con ulteriori vedute su doppie altezze. Peculiare è il soffitto ad onde del corridoio che accompagna in maniera morbida l’ospite attraverso gli ambienti della villetta. I materiali vengono reperiti in loco e si affidano alla tradizione delle edificazioni locali, così come l’ispirazione alle caratteristiche limonaie ha fatto da filo conduttore all’intero progetto.